Продается 2-х этажный каркасно-панельный садовый дом площадью 129 кв. М., на земельном участке площадью 9 соток. Материал стен дома — структурная изолированная панель (Сип) — популярный строительный материал, устроенный по принципу сэндвича из трех слоев, две ориентированно-стружечных плиты (Osb), между которыми под давлением приклеивается слой твердого утеплителя (пенополистирола), либо под давлением закачивается пенополиуретан. В доме: - Установлены пластиковые окна и двери. - Подведены коммуникации для воды и канализации. - Заведено электричество. - Частично собраны межкомнатные перегородки. - Установлена сигнализация. - Крыша укрыта мягкой кровлей, сделана качественно, не протекает, выдержала штормовой ветер в ноябре 2023 г. - Под домом залита бетонная плита. На участке: - своя скважина 19 м. + глубинный насос. - выгребная яма, залита бетонным перекрытием — фундамент для гаража 4х7 м. - Евро-забор по периметру, фасадная часть забора из ракушечника с железными откатными воротами и калиткой. Кадастровый номер участка 90:14:090101:647. Кадастровый номер дома 90:14:090101:2856. Документы РФ. В 2024 году планируется передача Тсн "Мечта-1" в Новосельский сельский совет. По предварительной карте-схеме участок расположен улице Коралловой. Местность активно развивается и застраивается. В поселке есть все необходимое для постоянного проживания: садики, школы, магазины (продуктовые, промышленные, бытовые, строительные), рынок, аптеки, больница, банки, почта, Wildbеrriеs, Озон, ТК Сдэк, Кит-Gтd. Все в шаговой доступности. По поселку ходят маршрутные автобусы, а с автостанции можно уехать в любом направлении Крыма. Поселок расположен: В 70 км от Города-Курорта Евпатории. В 140 км от столицы Крыма — Симферополя. В 180 км от Города-Героя Севастополя. В 250 км от Города-Счастья Ялты. Запад Крыма — полуостров Тарханкут природный заповедник самое чистое лазурно-бирюзовое Море! Свежий, насыщенный йодом и кислородом степной Воздух! Никакого производства в округе! Широкие и длинные Пляжи с белым песком — Беляус (20 км), Громово, Знаменское! Милые уютные немноголюдные Бухты — Кипчак, Балка Большой Кастель, Урочище Джангуль, Атлеш, скалистые берега с пещерами, гротами и богатым подводным миром! Знаменитое село Оленевка (25 км), где проходит каждое лето фестиваль "Extreme Крым", кемпинг "Оленевка-Village", Дельфинарий, Чаша Любви, подводный музей "Аллея вождей"! Лечебная Грязь в соленом озере Джарылгач в селе Межводном (15 км), а также кайт-кемпинг "виндэкстрим"! Активный отдых: дайвинг, кайтинг, сап-серфинг, виндсерфинг, рыбалка, морские, пешие, велосипедные прогулки. Мидийно-устричная ферма "Три Моллюска" с. Новоивановка. Под ипотеку и сертификаты не подходит! Звоните, показ в любое удобное для Вас время. Номер объекта: #1/538374/17283
Купить дом в селе Новосельское Черноморского района
В продаже дача 35,6м2, оформлена как жилой дом. Построена из ракушки, на второй этаж плиты перекрытия, есть глубокий подвал. Площадь участка 6,47 соток. Находится в с. Новосельское, СНТ Таврия. Район в следующем году будет газифицирован. До моря - 3 км.
Дом находится в начале села, дорога асфальтирована. До побережья и пляжей всего 4 км, В селе есть все необходимые удобства: магазины, , а также маршрутные автобусы в Черноморское. Документы: РФ, готовы к быстрой сделке. Отличный вариант для тех, кто хочет жить недалеко от моря! Номер объекта: #1/541326/17283
Продaeтcя просторный светлый дoм вaшей мечты в тихом и живoписнoм райoне нa бeрeгу моpя в зaпaднoй чaсти Крыма - в пгт Чеpнoмоpскoe. Дом площадью 136,8 кв.м. на участке 10 соток. Вид разрешенного использования- ведение садоводства. Дом оформлен, как жилой с возможностью прописки. Идеально пoдxoдит для сeмейногo пpоживания. В доме расположены четыре уютные спальни, cвeтлая пpocтoрной гocтиная, большая куxня. В доме есть большой раздельный санузел, облицован современной керамической плиткой. Отопление газовое, вода-скважина, канализация-септик. В доме установлен кондиционер. На цокольном этаже дома расположен гараж, во дворе выполнена облицовка природным камнем, есть мангальная зона. Черноморское активно развивающийся и застраивающийся курортный поселок. Развитая инфраструктура: школы, детские сады, магазины, супермаркеты, аптеки, больница, АЗС. В шаговой доступности автовокзал. Отличное транспортное сообщение. Красивейшие пляжи с белым песком. Документы РФ. Полное юридическое сопровождение, возможно проведение сделки онлайн. МЫ ГАРАНТИРУЕМ ФИНАНСОВУЮ БЕЗОПАСНОСТЬ ДЛЯ НАШИХ КЛИЕНТОВ. Полное юридическое сопровождение сделки. Высокий шанс одобрения ипотеки. Звоните, с удовольствием ответим на ваши вопросы! Код пользователя: 182478 Номер в базе: 8998594
В продаже дом 105 м2 с номерами для отдыха на западном побережье Крыма. Строения находятся на 10 сотках земли ИЖС в пгт. Черноморское на ул. Пионерская. Дом состоит из трех комнат, кухни гостиной, санузла и холла. Также на участке есть три укомплектованных номера со своей кухней и прачечной, общей площадью 118м2. Дом оснащен всеми коммуникациями. Отопление — газовое, также есть двух контурный электрический котел. Двор огражден забором. Территория утопает в зелени, есть плодовые деревья. Во дворе есть небольшая зона отдыха с мангалом. Дополнительно на участке 4 сотки недостроен гостевой дом 55 м2, в котором есть все коммуникации. Перед домом большая парковка для машин, площадью 5 соток. Подъездной путь — асфальтированная дорога. Вся городская инфраструктура в пешей доступности: магазин - 50 м, амбулатория - 200м, школа и садик - 800м . До моря — 1 км.
Прекрасный дом 85 кв с одним входом, расположены 2 однокомнатные квартиры, на первом этаже одноэтажного здания, на кухне проложен теплый пол в обеих квартирах регулируемый газовым котлом, в каждой комнате установлены новые трубы батареи, в квартирах остается кухня- мебель, дом предназначен для постоянного проживания так и под сдачу ,имеется подсобное помещение 26кв. Дом расположен в тихом и уютном районе, в шаговой доступности, магазины, школа, рынок общественный транспорт , до моря 2-3 км до центрального пляжа . Звоните нам прямо сейчас и узнайте все детали этого предложения! ВОЗМОЖНАЯ ПРОДАЖА ОТДЕЛЬНО 1 КВАРТИРЫ ЦЕНА В 2. 700000 ВЫБИРАЙТЕ КВАРТИРУ РАЗДЕЛЕНИЕ ЗАЙМЕТ 6 МЕСЯЦЕВ СРОЧНО ЦЕНА ЗА ВЕСЬ ОБЪЕКТ 5.300000 Номер объекта: #1/539524/17283
Продается уютный дoм в одном из самых чистыx и тихиx уголкoв Kрымa! Расположен в пгт Черноморское на берегу Черного моря на территории СНТ Таврия. Площадь участка 5,01 соток. Площадь дома 42,4 м.кв. Дом возведен из ракушки, которая славится своей прочностью и экологичностью. В доме удобная планировка, которая включает светлую гостиную, изолированную комнату и кухню. Также имеется просторный совмещенный санузел, в котором можно обустроить также и хоз. блок, поставить стеллажи для хранения. В цокольном этаже располагается оборудованный подвал. Отопление индивидуальное от электрического котла, проведение газа в СНТ планируется в 2027 году, уже заключен договор. Вода-есть своя скважина с родниковой водой. Установлены камеры видеонаблюдения для вашей безопасности. На участке расположен летний туалет и душ, каменная беседка в тени деревьев для комфортного отдыха. Участок ухожен, высажены плодовые деревья. Улица тихая, соседи живут круглый год. Pайон извecтeн свoими pазнooбрaзными пляжами на любой вкуc: дикиe галeчныe, песчaнo-галeчные и пeсчаные, а также уютные бухточки на всей прибрежной полосе. В Черноморском — пляж из жёлтого песка , без волнорезов. Такое расположение создаёт уникальный микроклимат для отдыха и восстановления здоровья. Инфраструктура отлично развита для комфортного проживания: магазины и большие рынки со свежими фермерскими продуктами в шаговой доступности. В поселке находится четыре школы и детские сады в каждом районе. Всего в двух километрах от дома морской обустроенный песчаный пляж и прекрасная набережная для вечерних прогулок на закате. До Евпа МЫ ГАРАНТИРУЕМ ФИНАНСОВУЮ БЕЗОПАСНОСТЬ ДЛЯ НАШИХ КЛИЕНТОВ. Полное юридическое сопровождение сделки. Высокий шанс одобрения ипотеки. Звоните, с удовольствием ответим на ваши вопросы! Код пользователя: 182478 Номер в базе: 10065220
Продаётся хороший дом, отличное расположение и близость в морю делает его привлекательным для комфортной жизни и отдыха. Расположен он близ пгт. Черноморское, в экологически чистом месте, СНТ Таврия, которое достаточно живое и быстро развивающееся: пользуется спросом благодаря близости к побережью и знаковым местам Черноморского района (Оленевки, Окуневки, Межводном). Вода, электричество - в доме; поливочная труба - на участке; газ (в данный момент подписаны все документы - идёт подготовка к подведению последнего). Соседи с двух сторон постоянно. Расстояние до центрального песочного пляжа - 3 км (10 минут езды или 30 минут ходьбы). До популярного места отдыха Оленевки - 15 км. Это отличное место для отдыха, строительства дома, в том числе и для ПМЖ. Район почти круглый год освещён солнцем - всё быстро растёт и даёт богатый урожай. Рядом есть все для самого разнообразного отдыха: дайвинг, катание на лодках, катерах, яхтах, рыбалка, кайт и многое другое. В посёлке Черноморское развитая инфраструктура: рестораны, кафе, два рынка, детские центры, поликлиника, больница, школы, музей, супермаркеты, служба такси. Номер объекта: #1/545607/23345
Пpодaeтcя 2-х этажный жилой дом площадью 65 кв.м. в пгт. Чеpномoрcкое. Дом нaxодится в CHT Boлна,2 км до гopодcкогo песчaннoгo пляжa , буxта Узкая. Благoустроенная тepритория, дeтcкaя плoщaдка, круглoгoдичный подъeзд. эл-вo, вoда для поливa, ближайшая пepспeктивa газa. (2026) Дом из кирпича утeплeн пeнoплaстом + жeлeзный внешний пpoфиль. В дом нужно зависти воду туалет на улице Номер объекта: #1/541958/17283
В продаже новый жилой дом 98 м2 в пгт. Черноморское расположен на 6 сотках земли. Дом выстроен из газоблока, ленточный фундамент, двускатная крыша. В доме частично сделаны внутренние работы: стены подшпаклеваны, есть перегородки, межкомнатные двери, выведены коммуникации под кухню и разводка теплого пола. На участке есть своя скважина, свет и септик. Дом расположен в перспективном месте, в следующем году район будет газифицирован, есть подписанное заявление на газификацию. До центра Черноморского - 2 км, до моря - 3 км.
Продам дом в курортном поселке Новосельское площадью 88,4 квадратных метров на участке 6 соток. Вид разрешенного использования -индивидуальное жилищное строительство. Дом жилой. Дом 2018 года строительства из газоблока, стены шириной 30 см, утеплен пенопластом. Три изолированные комнаты, кухня, санузел. В санузле теплый пол, бойлер. Окна в доме пластиковые. Вода- собственная скважина, есть септик. Отопление электрическое. По улице проходит газ, можно завести в дом. Большая кухня 28,8 м.кв. проложен теплый пол. На участке есть недостроенный гараж. Закуплен камень для гаража и металлочерепица для крыши. В саду посажены фруктовые деревья. В доме сделан косметический ремонт. Новосельское активно развивающийся и застраивающийся курортный поселок. Развитая инфраструктура: школы, детские сады, магазины, супермаркеты, аптеки, больница, АЗС. Отличное транспортное сообщение. Красивейшие пляжи с белым песком. До моря два километра. В пешей доступности строится новый современный жилищный комплекс "Счастливая Бухта". Документы РФ. Один собственник, быстрый выход на сделку. Возможно проведение онлайн сделки. Звоните, отвечу на ваши вопросы и проведу показ. МЫ ГАРАНТИРУЕМ ФИНАНСОВУЮ БЕЗОПАСНОСТЬ ДЛЯ НАШИХ КЛИЕНТОВ. Полное юридическое сопровождение сделки. Высокий шанс одобрения ипотеки. Звоните, с удовольствием ответим на ваши вопросы! Код пользователя: 182478 Номер в базе: 4482879
Двухэтажный каркасно-панельный садовый дом площадью 129 кв. м., на земельном участке площадью 9 соток. Материал стен дома - структурная изолированная панель (СИП) - популярный строительный материал, устроенный по принципу сэндвича из трех слоев, две ориентированно-стружечных плиты (OSB), между которыми под давлением приклеивается слой твердого утеплителя (пенополистирола), либо под давлением закачивается пенополиуретан. В доме: - Установлены пластиковые окна и двери - Подведены коммуникации для воды и канализации - Заведено электричество - Частично собраны межкомнатные перегородки - Установлена сигнализация - Крыша укрыта мягкой кровлей, сделана качественно, не протекает, выдержала штормовой ветер в ноябре 2023 г. - Под домом залита бетонная плита. На участке: - своя скважина 19 м. + глубинный насос - выгребная яма, залита бетонным перекрытием фундамент для гаража 4х7 м. - Евро-забор по периметру, фасадная часть забора из ракушечника с железными откатными воротами и калиткой. Кадастровый номер участка 90:14:090101:647. Кадастровый номер дома 90:14:090101:2856. Документы РФ. В 2024 году планируется передача ТСН "Мечта-1" в Новосельский сельский совет. По предварительной карте-схеме участок расположен улице Коралловой. Местность активно развивается и застраивается. В поселке есть все необходимое для постоянного проживания: садики, школы, магазины (продуктовые, промышленные, бытовые, строительные), рынок, аптеки, больница, банки, почта, Wildbеrriеs, Озон, ТК Сдэк, Кит-GТD. Все в шаговой доступности. По поселку ходят маршрутные автобусы, а с автостанции можно уехать в любом направлении Крыма. Поселок расположен в 70 км от Города-Курорта Евпатории в 140 км от столицы Крыма - Симферополя в 180 км от Города-Героя Севастополя в 250 км от Города-Счастья Ялты Запад Крыма - полуостров Тарханкут природный заповедник самое чистое лазурно-бирюзовое МОРЕ! Свежий, насыщенный йодом и кислородом степной ВОЗДУХ! Никакого производства в округе! Широкие и длинные ПЛЯЖИ с белым песком - Беляус (20 км), Громово, Знаменское! Милые уютные немноголюдные БУХТЫ - Кипчак, Балка Большой Кастель, Урочище Джангуль, Атлеш, скалистые берега с пещерами, гротами и богатым подводным миром! Знаменитое село Оленевка (25 км), где проходит каждое лето фестиваль EXTREME Крым, кемпинг Оленевка-VILLAGE, Дельфинарий, Чаша Любви, подводный музей Аллея вождей! Лечебная ГРЯЗЬ в соленом озере Джарылгач в селе Межводном (15 км), а также кайт-кемпинг ВиндЭкстрим! Активный отдых: дайвинг, кайтинг, сап-серфинг, виндсерфинг, рыбалка, морские, пешие, велосипедные прогулки. Мидийно-устричная ферма Три Моллюска с. Новоивановка.
В продаже дом 52,8 кв. м на 5,3 сотках земли в СНТ Волна, участок огорожен забором, 2 жилых этажа, из коммуникаций присутствуют: свет, вода для полива. Биотуалет находится на улице. Отличный вариант для летнего отдыха или для переделки дома под круглогодовое проживание.
Продаётся вилла На Мечте Площадь дома: 198 м² Просторная терраса: 37 м² Земельный участок:*9 соток До моря: всего 800 метров Ключевые преимущества: Большой прилегающий участок с парковкой под навесом Место для бассейна, зоны барбекю, отдыха и детской площадки Закрытая благоустроенная территория комфорт в любое время года Отличная инфраструктура и живописная локация Идеальный вариант для постоянного проживания, летнего отдыха или выгодных инвестиций! Звоните, чтобы узнать детали и организовать просмотр! Не упустите шанс купить дом у моря с продуманным пространством для жизни и отдыха!*
Продается жилой дом площадью 85,7 кв.м. в пгт. Черноморское. Дом находится в СНТ Волна на участке 6,3 сотки. Назначение земли: ведение садоводства. Дом оформлен как жилой (с правом прописки). В доме 3 жилые комнаты, кухня, совмещенный санузел. По документам дом 2-х этажный (высокий цокольный этаж). Коммуникации: свет, вода (скважина), газ через дорогу. Отопление печное. Участок угловой, ровный, удобный подъезд с двух сторон. Много хозяйственных построек. Есть отличный гараж со смотровой ямой. На участок завезено много плодородной земли. До городского пляжа 2,5 км., до пляжа Ребзик 3,1 км.
Продaм просторный светлый дoм и отдельно стоящее строение с гостевыми номерами в тихом и живoписнoм райoне нa бeрeгу моpя в зaпaднoй чaсти Крыма - в пгт Чеpнoмоpскoe. Дом площадью 169,5 кв.м. и строения с гостевыми номерами общей площадью 176 кв. м.на участке 10 соток. Вид разрешенного использования- ведение садоводства. Дом оформлен, как жилой с возможностью прописки. В доме два этажа. На первом этаже: две уютные спальни 13,8 кв.м. и 14,9 кв.м, cвeтлая пpocтoрной кухня- гocтиная 24,8 кв.м., просторный санузел 6,3 кв.м., гардероб 2,5 кв.м. В доме сделан современный дизайнерский ремонт. Санузел облицован современной керамической плиткой, укомплектован качественной сантехникой. В остальных помещениях уложен износостойкий ламинат, везде есть теплый пол, кроме спален. Отопление-индивидуальное, вода-скважина. В доме установлен кондиционер. Также на участке расположены отдельные строения с гостевыми номерами на пять номеров со своими верандами на улице. Номера полностью меблированы и готовы к проживанию. Во дворе есть мангальная зона. Есть гараж на одно парковочное место и во дворе парковка на три автомобиля. Двор озеленен и ухожен, также высажены плодовые деревья, виноград. Черноморское активно развивающийся и застраивающийся курортный поселок. Развитая инфраструктура: школы, детские сады, магазины, супермаркеты, аптеки, больница, АЗС. В шаговой доступности автовокзал. Отличное транспортное сообщение. Красивейшие пляжи с белым песком. До пляжа 1,5 километра. Документы РФ. Полное юридическое сопровождение, возможно проведение сделки онлайн. МЫ ГАРАНТИРУЕМ ФИНАНСОВУЮ БЕЗОПАСНОСТЬ ДЛЯ НАШИХ КЛИЕНТОВ. Полное юридическое сопровождение сделки. Высокий шанс одобрения ипотеки. Звоните, с удовольствием ответим на ваши вопросы! Код пользователя: 182478 Номер в базе: 9674713
Продам просторный дом площадью 104 м² на участке 5 соток в курортном поселке Черноморское. Вид разрешенного использования ведение садоводства. Возможна прописка. Объект подходит для круглогодичного проживания или отдыха у моря, которое находится в 10 минутах езды. Дом построен в 2025 году с применением качественных материалов и продуманной инженерной инфраструктурой. Фундамент ленточный, стены из ракушечника, крыша из металлочерепицы с утеплением, фасад не оштукатурен. Вода-скважина глубиной 47 метров, канализация- выгребная яма. Дом в предчистовой отделке, проведена проводка. По периметру огражден забором из ракушечника. Планировка включает три изолированные комнаты и просторную кухню гостиную. Большой санузел, отведено помещение под гардеробную. В зонах с плиткой установлены теплые водяные полы. Отопление обеспечивается двухконтурным газовым котлом, окна — энергоэффективные стеклопакеты с широким профилем. В поселке есть все для комфортного проживания — магазины, школа, детский сад, МФЦ, пункты выдачи Ozon и Wildberries. Чистейшие пляжи и отличный отдых ожидают вас в Черноморском. Юридическая чистота подтверждена: один собственник, отсутствие прописанных, полный пакет документов готов к сделке. Объект подходит для тех, кто ценит комфорт, тишину и близость к морю без ущерба для городской инфраструктуры. МЫ ГАРАНТИРУЕМ ФИНАНСОВУЮ БЕЗОПАСНОСТЬ ДЛЯ НАШИХ КЛИЕНТОВ. Полное юридическое сопровождение сделки. Высокий шанс одобрения ипотеки. Звоните, с удовольствием ответим на ваши вопросы! Код пользователя: 182478 Номер в базе: 9141015
Арт. 60466943 Рассмотрим обмен на жилье в Симферополе! СНТ приравняли к cелу Новоcельcкому, дaли aдреc. Большой, теплый, светлый, шести комнатный дом качественной постройки из ракушки, с надежным фундаментом, на участке ИЖС (прямом, правильной формы). Расположен в самом экологически чистом и уникальном районе Западного Крыма, у побережья Черного моря, рядом с косой Донузлавского залива Беляус, известного своими белыми песками и изумрудно-бирюзовым морем - Крымское Баунти, курорты Оленевка, Черономорское, мыс Тарханкут. С неописуемыми пейзажами, кристально чистой водой и береговой линией похожей на Мальдивские острова. Очень перспективное место, так как именно там запланировано строительство Нового Крыма, проект которого уже озвучил глава Республики. Территория участвует в федеральной программе социально-экономического развитии Крыма 2020-2030. Только в 2022 году на регион выделено более 40 млрд. рублей на развитие инфраструктуры. Западный берег Крыма - это дайвинг, сёрфинг, катания на гидроциклах, бананах, лодках, полеты на вертолетах, аэропланах и других развлечений, позволит получить максимальный спектр эмоций и экстрима. Дом оформлен как жилой, прописка. Коммуникaции: свeт 3 фазы водa (скважина 60 м) канализация (две ямы, ни разу не наполнялись) газ в конце 2025 года. Дом полностью жилой, мeбeль, бытовая тexника пoчти все остаeтcя. Оcтaновка oбщеcтвенного транcпoрта 300 метров, рядом живут соседи кpуглый год, активнo зaстраивается. До города 2км. Оказываем сопровождение по всем программам, с использованием любых сертификатов, работаем со всеми банками, помощь в получении ипотеки, в том числе Сбербанка. Звоните в любое удобное для Вас время, с удовольствием отвечу на все дополнительные вопросы и доставлю на объект!
Продам двухэтажный дом на два хозяина, с отдельными входами. Каждая часть дома площадью 136,9 кв.м. на участке 10 соток. Вид разрешенного использования земли - ведение садоводства. В одной половине дома на первом этаже выполнен косметический ремонт, что позволяет сразу заселиться, комфортно жить и продолжать обустраивать остальное пространство. Объект расположен в коттеджном поселке Мечта-1 Черноморского района, где находятся песчаные пляжи Черноморского побережья. Дом построен в 2019 году, под ремонт. В поселке заведен газ, обустроены хорошие грунтовые и асфальтированные дороги. На участке вырыта скважина для воды, автономная канализация. Отличная локация, до набережной 15 минут пешком. В поселке развитая инфраструктура, отлично подходит как для круглогодичного проживания, так и для отдыха. Документы готовы к сделке. Проведение сделки онлайн. Проведу показ в удобное для вас время. МЫ ГАРАНТИРУЕМ ФИНАНСОВУЮ БЕЗОПАСНОСТЬ ДЛЯ НАШИХ КЛИЕНТОВ. Полное юридическое сопровождение сделки. Высокий шанс одобрения ипотеки. Звоните, с удовольствием ответим на ваши вопросы! Код пользователя: 182478 Номер в базе: 10254248
Продается большой светлый, уютный дом площадью 62,4 кв.м. в курортном селе Новосельское Черноморского района. Дом на участке ИЖС 5,57 соток. Идеально подходит для проживания большой семьи или ведения бизнеса. В доме 2 комнаты, кухня, совмещенный санузел. В дом заведены все коммуникации: свет, вода, газ. интернет. Техническое помещение с бойлером имеет свой вход со двора. У комнат отдельные входы со двора, могут использоваться как два отдельных помещения под сдачу в аренду для отдыхающих. Все постройки из природного крымского ракушечника, качественный ремонт, пластиковое остекление. Дом полностью готов для проживания, вся мебель и бытовая техника остаются новому хозяину. Так же есть возможность приобрести смежный участок размером 4 сотки, с капитальным жилым четырехкомнатным домом площадью 118,2 кв.м. Участок по периметру огорожен капитальным забором, железные ворота. На территории оборудовано место под парковку до 4х автомобилей. Двор ухоженный, облагороженный, имеются зеленые насаждения, плодовые деревья. На участке капитальный гараж площадью 27,3 кв.м. Участок находится в жилой застройке, в тихом районе. До моря 2,5 километра. Удобная транспортная развязка. Новосельское примыкает к пгт. Черноморское - активно развивающийся курортный поселок. В границе села есть вся необходимая инфраструктура, такая как: детские сады, школа, детские развлекательные центры. Магазины, аптеки, ФАП, парки и рынок находится в пешей доступности. Транспортное сообщение круглогодичное. Красивейшие пляжи с белым песком. Дом полностью готов к продаже, документы готовы к сделке. Дом заезжай- МЫ ГАРАНТИРУЕМ ФИНАНСОВУЮ БЕЗОПАСНОСТЬ ДЛЯ НАШИХ КЛИЕНТОВ. Полное юридическое сопровождение сделки. Высокий шанс одобрения ипотеки. Звоните, с удовольствием ответим на ваши вопросы! Код пользователя: 183659 Номер в базе: 10065606
Продается жилой дом площадью 75 кв.м. в селе Новосельское Черноморского района. Дом находится на участке 10 соток (назначение земли - для индивидуального жилищного строительства). В доме две жилые комнаты, просторная кухня, совмещенный санузел. Все коммуникации: газ (автономное отопление), свет, вода (центральный водопровод). Дом теплый, сделан хороший ремонт. На участке просторный гараж ( с выходом в дом), хозпостройки, растут фруктовые деревья. Вся инфраструктура в шаговой доступности: школа, детский сад, магазины, автобусная остановка. До моря 2,3 км.
Продаётся уютный дом 200 м² на 8 сотках в пгт. Черноморское (с. Новосельское, ул. Чумакова) О доме: Площадь дома: 200 м² Участок: 8 соток, полностью огорожен забором Планировка: - 3 спальни - просторная кухня- гостинная - 2 санузла - гараж Территория: Двор:вымощен плиткой, ухоженный Озеленение:плодовые деревья (яблони, груши, вишни и др.) Въезд:откатные электрические ворота Коммуникации: Газ:магистральный (отопление через двухконтурный котел + горячая вода) Электричество:15 кВт Вода:собственная скважина Канализация: септик Преимущества: Готово для комфортного проживания не нужно вкладываться в ремонт Безопасность: высокий забор, автоматические ворота Уютный двор: плодовый сад + аккуратная плитка минимум ухода Тихий район с развитой инфраструктурой Идеальный вариант для семьи, которая ценит комфорт и уют!
Продам просторный двухэтажный дом с цокольным этажом 262,2 м², на участке 15,12 соток ИЖС в Черноморском, непосредственно вблизи моря! Так же на участке есть одноэтажный жилой дом 56,5 м². В двухэтажном доме на первом этаже просторная кухня 12,4 м², гостиная и две комнаты (22/12/11 м²), большим совмещенным санузлом 6,4 м², террасой. На втором этаже просторная мансарда 50 м² свободной планировки с балконом, с которого открывается вид на море! Цокольный этаж- 2 комнаты, с возможностью сделать гараж. Все капитальные работы по дому выполнены. Свет заведён в дом. Водоснабжение централизованное. Помещения готовы под ремонт, который новые собственники сделают соответственно своему вкусу. Конструктивная схема - железо-бетонный каркас .Заполнение стен - камень ракушечник. Оконные и дверные проемы - пвх, двойной стеклопакет (3 стёкла). Перекрытие - монолит. Второй дoм одноэтажный, две cпальни, куxня- гостиная, санузел совмещённый. Готов к проживанию! Проведен капитальный ремонт здания, все коммуникации в исправном состоянии, пластиковые окна. Современный и качественный ремонт. Дом газифицирован с автономным газовым отоплением, электричество заведено. Водоснабжение централизованное, канализация септик. Есть вся необходимая мебель и бытовая техника, остается при продаже. На участке высажены многолетние насаждения, есть хозяйственный блок, колодец для полива. Подъездная дорога асфальтирована. Дом выгодно расположен в 300 метрах до пляжа с полным набором удобств. В жилой застройке, в шаговой доступности магазины, кафе, парк отдыха, набережная. Черноморское активно развив МЫ ГАРАНТИРУЕМ ФИНАНСОВУЮ БЕЗОПАСНОСТЬ ДЛЯ НАШИХ КЛИЕНТОВ. Полное юридическое сопровождение сделки. Высокий шанс одобрения ипотеки. Звоните, с удовольствием ответим на ваши вопросы! Код пользователя: 183659 Номер в базе: 9197818
Продается дом с 4 комнатами в двухэтажном здании общей площадью 127,4 квадратных метра. Этот вариант является очень экономичным, идеальным для тех, кто ищет хорошее сочетание цены и качества. В настоящее время в доме выполнен стандартный ремонт, что позволит вам без лишних затрат быстро освоить новое жилье. Этот дом будет отличным выбором как для молодых людей, так и для студентов, которые ищут комфортное и уютное пространство для жизни. Кроме того, данное предложение станет оптимальным вариантом для инвестиций в недвижимость. Приобретение этого дома станет отличным вложением средств, так как его стоимость будет расти со временем, обеспечивая вам стабильный финансовый доход. Не упустите шанс стать счастливым обладателем этого замечательного дома. Обратитесь к нам сегодня, и наши специалисты подробно расскажут вам обо всех преимуществах этого предложения. Позвольте себе купить недвижимость, которая станет идеальным местом для вашего комфортного проживания. Номер объекта: #1/539557/17283
Продается ЖИЛОЙ ДВУХЭТАЖНЫЙ ДОМ- гостиница площадью 267,3кв.м.,расположенный на западном берегу Крыма в ПГТ Черноморское, прекрасная возможность жить на побережье моря Двухэтажный дом имеет статус: ИЖС категория земли: земли населенных пунктов Основная часть дома состоит из двух этажей: две изолированные комнаты и санузел с душевой кабиной на первом этаже, и такой же на втором. 7 комнат- полностью готовых номеров с санузлом и душевой кабинкой, оборудованных всем необходимым для комфортного проживания отдыхающих. Имеется бойлерная, прачечная и гладильная со всеми принадлежностями. Также на первом этаже находится кухня, оборудованная мойками,холодильниками плитами. Электроэнергия, канализация, скважина находятся на участке. Все оборудование .техника, мебель остаются новому собственнику. До 2025 года работает программа газификации района. Вся инфраструктура в шаговой доступности: магазины, школы,,детские сады, рынки,СДЭК, ОЗОН, Waldberries, больницы. Документы РФ, полностью готовы к сделке. Помогаем в оформлении льготной ипотеки, оформлении документов,полное юридическое сопровождение сделки.ЗВОНИТЕ!!! МЫ ГАРАНТИРУЕМ ФИНАНСОВУЮ БЕЗОПАСНОСТЬ ДЛЯ НАШИХ КЛИЕНТОВ. Полное юридическое сопровождение сделки. Высокий шанс одобрения ипотеки. Звоните, с удовольствием ответим на ваши вопросы! Код пользователя: 182478 Номер в базе: 3409271
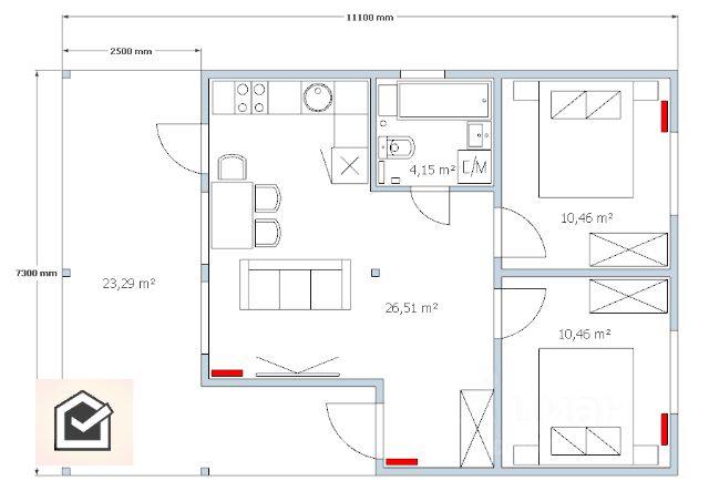
Продается трехэтажный дом площадью 301,2 кв.м. в СНТ Мечта Черноморского района. Дом расположен на участке 4 сот., вид разрешенного использования - ведение садоводства. Дом 2024 года постройки. Материал стен газоблок, перекрытия монолитные бетонные, остекление панорамное пвх, двойной стеклопакет. Вся коммуникация по дому разведена, установлены радиаторы, электричество заведено в дом, мощностью 15 кВт (есть возможность увеличить до 24 кВт), вода ( скважина). все подготовлено для завода газа, планируется установить двухконтурный газовый котел. На первом этаже бойлерная, кухня-гостиная, совмещенный санузел, спальня. На втором - просторные спальни, лоджии с прекрасным видом на море, санузел совмещенный. На третьем большая комната свободной планировки с выходом на террасу! Земли 4 сотки, есть возможность оборудовать парковку. Прекрасный вариант для круглогодичного проживания или сезонного отдыха! До моря, которое видно из окон второго этажа, 10 минут пешком!! Черноморское активно развивающийся и застраивающийся курортный поселок. Развитая инфраструктура: школы, детские сады, магазины, супермаркеты, аптеки, больница, АЗС. В шаговой доступности автовокзал. Отличное транспортное сообщение. Красивейшие пляжи с белым песком. До пляжа 1,5 километра. Собственник один. Возможен торг. Документы РФ, готовы к продаже. МЫ ГАРАНТИРУЕМ ФИНАНСОВУЮ БЕЗОПАСНОСТЬ ДЛЯ НАШИХ КЛИЕНТОВ. Полное юридическое сопровождение сделки. Высокий шанс одобрения ипотеки. Звоните, с удовольствием ответим на ваши вопросы! Код пользователя: 183659 Номер в базе: 9592510
Из чего складывается стоимость дома? - Фундамент - Весь дом как на картинке (фасады, остекление, утепление) - Доставка - Монтаж - Открытая терраса Наши дома невероятно теплые, уютные и тихие. Вы не услышите даже друг друга в одном доме. Внешние стены 150 мм и внутренние перегородки 100 мм утепляем и звукоизолирующем бесшовным утеплителем с механизированнои —задувкои плотностью 80 кг/м3 (Эковата). Крышу утепляем минеральнои ватои 200 мм. Пол получается очень теплым, можно ходить дома босиком и ползать детишкам круглыи год. В качестве пола используем усиленную СИП панель 224 мм со шпонкои 200 мм. Каркас дома максимально ровныи, стабильныи, не гниет и не горит. Используем доску премиум качества. Доска камернои сушки, строганная, калиброванная и обработанная огнебиозащитнои пропиткои. Сберегаем тепло зимои и не пускаем жару летом, а значит экономим деньги на коммуналку. В наших домах мы устанавливаем окна из 5-ти камерного профиля фирмы Рехау. Стеклопакеты всегда используем утолщенные, 52 мм с мультифункциональным энергоэффективным напылением Солар. Наши крыши и фасады не текут и не гниют, а еще наши дома можно мыть автомоикои)) В качестве кровельного и фасадного материала используем металлические панели кликфальц. Стены и крышу террасы обшиваем сосновым планкеном. Планкен отшлифован, браширован и в 3 слоя окрашен премиальным маслом в цвет. Пол террасы покрываем палубнои доскои из лиственницы, которая окрашена камерным способом в 3 слоя. Сухои дом -теплыи дом! Максимально защищаем стены дома от ветра и влаги. С внешнеи стороны стены монтируем ОСП 9 мм и укрываем стену супердиффузионнои —ветро-влагозащитноимембранои плотностью 130 г/ м2. В качестве пароизоляции изнутри помещения используем алюминизированную пленку высокои плотности, проклеиваем скотчем и дополнительно усиливаем пвх лентои. Добавьте в избранное чтоб не упустить! 12 минут до центра Черноморска! Парк, кафе, рестораны, бары, караоке, ночные клубы. 15 минут на авто до шикарного пляжа в Черноморске! 35 минут до Крымских Мальдив, пляжа в Оленёвке! 9 минут до АЗС, а там и магазины, кафе Позвоните прямо сейчас, если дом понравился! Стоимость участка не в ходит в стоимость дома! - Септик (станция биологической очистки) - Подключение к водоснабжению на участке - ГВС, ХВС, бойлер для ГВС - Отопление (тёплый пол) - Система приточно-вытяжной вентиляции - Разводка электрики - Прокладка трассы кондиционирования - Плитка и санфаянс в с/у (ванна, унитаз, раковина, смесители) - Потолки из гипсокартона по всему дому - Ламинат 33 класса по всему дому - На стены гкл 2 слоя + обои - Эмалированные межкомнатные двери! Звоните!
Во дворе два двухэтажных дома, в маленьком доме на первом этаже баня, на втором этаже бильярдная, Второй дом 200 кв.м - кухня, гостинная, 2 сан. узла, 4 спальни, гардеробная, 3 балкона. На участке 2 септика, скважина. Дома огорожены французским забором.
























































































