


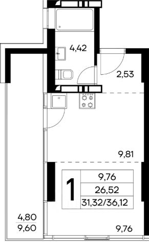
136 000 ₽/м²
Квартал "Предгорье" расположен в окружении гор, у подножья Чатыр- дагского массива, недалеко от знаменитого Ангарского перевала, который является популярным туристическим маршрутом, местом для отдыха и точкой сбора любителей лесного и горного туризма. Квартал состоит из четырех домов переменной этажности в 4 - 5 этажей с закрытым внутренним пространством. Первые этажи - функциональны. Здесь разместятся магазины, сервисы, творческие студии для детей. С одной стороны, нам открывается особая атмосфера уединения, а с другой возможность наслаждаться прелестями загородной жизни легко и комфортно. "Предгорье" для тех, кто тяготеет к спокойной жизни в окружении природы, но не готов тратить силы и ресурсы на постоянное обслуживание и содержание собственного дома. В ЖК "Предгорье" все спокойно, просто и понятно. Оплот безопасности и расслабления, куда стремишься после суетливого, напряженного рабочего дня. Место, где жизнь становится яснее и стабильнее. Легко жить просто! Продается 3-комнатная квартира в селе Перевальное Симферопольского района.


























































































