

















124 677 ₽/м²
Продается просторная двухкомнатная квартира в новом крупном микрорайоне в пгт Гвардейском Симферопольского района в ЖК "Республика"!!! По цене от застройщика!!! Без комиссии для покупателя!!! В данном проекте доступна рассрочка без процентов на гибких условиях!!! Работаем по ФЗ-214 с использованием эскроу-счетов - 100% гарантия сохранности средств дольщиков. Доступна ипотека, рассрочка, использование маткапитала. Что предлагает ЖК "Республика": -Индивидуальные дизайн-проекты холлов -Система умный дом (видеонаблюдение, вход по смарт-картам или доступ с мобильного устройства) -Уютные, благоустроенные дворы -Ландшафтное озеленение с автополивом -Современные детские площадки -Спортивные площадки -Места отдыха -Удобные парковочные пространства -Бесшумные и вместительные лифты Дома строятся по монолитно-каркасной технологии из современных качественных материалов. Технические характеристики квартиры: Квартира оборудована индивидуальными газовым отоплением, что позволит значительно снизить платежи за коммунальные услуги, а также индивидуально регулировать температуру воздуха и горячей воды. Общая площадь:53.32м.кв. Жилая площадь: 27 м.кв. Площадь кухни:10.34 м.кв Водоснабжение: центральное Электроснабжение: центральное В непосредственной близости новая Республиканская современная больница имени Семашко. Рядом все важные социальные объекты, остановки и развитый жилой район. На прилегающем участке строится новый детский сад на 240 мест. Удобная транспортная развязка даёт возможность быстро выехать на федеральную трассу Таврида. Отсюда можно с лёгкостью добраться в любой район Симферополя, а также до аэропорта и ЖД-вокзала. ЖК "Республика"- идеальный выбор для тех, кто ищет баланс между городским комфортом крымской столицы и спокойным ритмом уютного района. Позвоните нам и мы предоставим Вам подробную информацию о ЖК "Республика"!!!



120 000 ₽/м²
Объект 5765. ЖК Приоритет - новый современный комплекс комфорт-класса. Жилой комплекс расположен в северо-западной части Симферополя, не далеко от Евпаторийского шоссе в новом перспективно развивающемся районе. Расстояние от комплекса до центра города 10 км, железнодорожный вокзал и автовокзалы расположены в 7 километрах от жилого комплекса, а аэропорт в 15 километрах. Развитая транспортная развязка позволит владельцам квартир за короткое время добраться в любую точку города. Однако, несмотря на близость инфраструктуры города, это тихое и спокойное место, вблизи которого находится сосновый бор и пруды. А до ближайшего пляжа на авто можно добраться всего за 40 минут. ЖК Приоритет находится в развивающемся районе, который активно застраивается. Рядом расположены крупные гипермаркеты "Метро", "Меганом" и "Ашан" и несколько высших учебных заведений: Академия Строительства И Архитектуры, КФУ им. В.И. Вернадского, Медицинская академия имени С. И. Георгиевского и Российский Государственный Университет Правосудия. Современный жилой комплекс представляет собой десятиэтажные дома с благоустроенной прилегающей территорией. Во дворе детская и спортивная площадки. Дома строятся по монолитно-каркасной технологии с учетом новых стандартов энергосбережения и отделки фасада, поэтому даже в зимний период в квартирах будет тепло и уютно. Ближайшая сдача в конце 2026 года Про квартиру:- Этаж 9/12 - Площадь 31,3 м2 - Комнат 1, площадью 11.3 м2 - Кухня площадью 10.9 м2 - С/у, площадью 4.1 м2 - Отопление газ - Высота потолков - 2,7 м Важно: Продажа осуществляется по 215 - ФЗ, ЖНК. Возможность показа и покупки квартиры дистанционно. Про показы: оперативно по предварительной договоренности. Позвоните, чтобы назначить просмотр!



151 786 ₽/м²
Преимущества ЖК: • Все для комфортного и активного образа жизни • Для детей предусмотрены функциональные игровые зоны Инфраструктура развита: • Детский сад, школа в шаговой доступности • Торгово-развлекательные центры • Гипермаркет Ашан • Паркинг, офисные центры Планируемый срок ввода дома в эксплуатацию: март 2026 года



135 714 ₽/м²
Предлагаем к продаже 1-к квартиру-студию в новом ЖК "Солнечный парк"! Хорошая транспортная развязка, до Ашана 5 мин.! Предчистовая отделка стен! Панорамное остекление на балконе! Рассрочка до конца строительства! Семейная ипотека 6%! Без комиссии! Есть вопросы, звоните!



134 615 ₽/м²
Предлагаем к продаже 2-к квартиры с большой кухней-гостиной в новом ЖК "Солнечный парк"! Хорошая транспортная развязка! До Ашана 5 мин. Панорамное остекление на балконах! Предчистовая отделка! Рассрочка, семейная ипотека 6% , наличные! Без комиссии! Есть вопросы, звоните!



120 000 ₽/м²
Объект 5769. ЖК Приоритет - новый современный комплекс комфорт-класса. Жилой комплекс расположен в северо-западной части Симферополя, не далеко от Евпаторийского шоссе в новом перспективно развивающемся районе. Расстояние от комплекса до центра города 10 км, железнодорожный вокзал и автовокзалы расположены в 7 километрах от жилого комплекса, а аэропорт в 15 километрах. Развитая транспортная развязка позволит владельцам квартир за короткое время добраться в любую точку города. Однако, несмотря на близость инфраструктуры города, это тихое и спокойное место, вблизи которого находится сосновый бор и пруды. А до ближайшего пляжа на авто можно добраться всего за 40 минут. ЖК Приоритет находится в развивающемся районе, который активно застраивается. Рядом расположены крупные гипермаркеты "Метро", "Меганом" и "Ашан" и несколько высших учебных заведений: Академия Строительства И Архитектуры, КФУ им. В.И. Вернадского, Медицинская академия имени С. И. Георгиевского и Российский Государственный Университет Правосудия. Современный жилой комплекс представляет собой десятиэтажные дома с благоустроенной прилегающей территорией. Во дворе детская и спортивная площадки. Дома строятся по монолитно-каркасной технологии с учетом новых стандартов энергосбережения и отделки фасада, поэтому даже в зимний период в квартирах будет тепло и уютно. Ближайшая сдача в конце 2026 года При полной оплате цена студии 2.9 млн рублей Про квартиру:- Этаж 3/10 - Площадь 27,2 м2 - Комнат 1, площадью 22.1 м2 - С/у, площадью 4.1 м2 - Отопление газ - Высота потолков - 2,7 м Важно: Продажа осуществляется по 215 - ФЗ, ЖНК. Возможность показа и покупки квартиры дистанционно. Про показы: оперативно по предварительной договоренности. Позвоните, чтобы назначить просмотр!




147 000 ₽/м²
ЖK "Солнечный парк" квартиры нoвoго пoколeния! дома с пеpeменнoй этaжноcтью объединённой общeй aрхитектурной кoнцeпцией. Широкий выбор планировок Всегда есть выбор квартир с прекрасными видами: на город и гору Чатыр-Даг, на закат и новый аэропорт, представлены квартиры - классические, так и евро-форматы, Квартиры с увеличенными оконными проемами для улучшенной инсоляции. Разноуровневые жилые секции Вы любите просыпаться с красивым видом на город, находясь на высоком этаже? Видовые квартиры с панорамным остеклением порадуют любителей красивых видов. Развитая инфраструктура На территории района расположится всё необходимое для комфортной жизни магазины, кафе, школа и детские сады, спортивные площадки и многое другое. Комфорт в каждом квадратном метреКвартиры с предчистовой отделкой, Архитектурная подсветка домов бесшумные лифты колясочные и велосипедные келлеры ( кладовые помещения) Благоустройство дворов Оригинальная компоновка различных игровых площадок и зон отдыха все объекты инфраструктуры расположены на "расстоянии вытянутой руки" - чтобы дойти до прогулочной зоны или детской площадки, вам не придется тратить много времени. Все находится в безопасном дворе. Безбарьерная среда Для удобства мам с колясками и людей с ограниченными возможностями мы создали безбарьерную среду, которая позволяет комфортно перемещаться по жилому комплексу. Дизайнерские входные группы Вместо подъездов просторные, светлые холлы с дизайнерским интерьером и зоной ожидания. Приобрести квартиру можно одним из способов: -ипотека, семейная и военная.- материнский капитал в качестве первоначального взноса -рассрочка до конца строительства -100% оплата по ФЗ - 214 -дистанционная сделка



193 620 ₽/м²
Продается квартира в ЖК ПАРК СИТИ! Семейный комплекс бизнес-класса в центре Симферополя! Вашему вниманию предлагаем двухкомнатную квартиру на четырнадцатом этаже двадцатиэтажного дома. Общая площадь - 63.06 м2, просторная кухня 19.13 м2, застекленная лоджия. Очень удобная планировка! Квартира в черновой отделке, под ваш эксклюзивный ремонт! ЖК ПАРК СИТИ удобно расположен в центре Симферополя, что позволяет легко и быстро добраться в любую точку города. В шаговой доступности расположен Детский парк, где можно провести время с семьей. Вокруг территории комплекса есть всё необходимое для комфортной жизни. СДАЧА ДОМА ПЛАНИРУЕТСЯ В 2026 ГОДУ, УСПЕЙТЕ КУПИТЬ ПО ОТЛИЧНОЙ ЦЕНЕ! Если заинтересовал вариант - звоните! Номер объекта: 10693758 МЫ ГАРАНТИРУЕМ ФИНАНСОВУЮ БЕЗОПАСНОСТЬ ДЛЯ НАШИХ КЛИЕНТОВ. Полное юридическое сопровождение сделки. Высокий шанс одобрения ипотеки. Звоните, с удовольствием ответим на ваши вопросы! Код пользователя: 130595 Номер в базе: 2612481



333 656 ₽/м²
Пpодaжa новой двухкомнатной квартиры с раздельными спальнями в самом прecтижнoм paйoне Симферополя. Дизайн-проект в подарок Квартира на 11 этаже с панорамными окнами из кухни и гостиной с видом на парк Вернадского, реку Салгир, гору Чатыр-Даг, со спальни на Неаполь Скифский. Дом сдан весной 2024 года. В квартире много света, хорошее остекление, окна с алюминиевым профилем, высокие потолки 3 метра, установленные радиаторы в каждой комнате. При сдаче квартиры привлеченным технадзором не было обнаружено ни одного замечания. Дом наxодится нa зaкpытoй oxpaняемой тeрpитоpии с видeoнaблюдeниeм, eсть пoдземный пapкинг, консьерж в подъездe, озеленение придомовой парковой территории, закрытый благоустроенный двор для жильцов дома и выход на набережную реки с детскими площадками, ресторанами и кафе, салонами красоты и магазинами, большим спортивным комплексом. В лучшем ЖК Симферополя планируется открытие бассейна на соседних зданиях прямо на крыше комплекса, открытие детского сада и школы. В районе в пешей доступности две школы, рядом автовокзал, в пяти минутах новый продуктовый супермаркет Яблоко. Показ квартиры осуществляется только реальным покупателям, никаких эксклюзивов и реклам третьими лицами. Звонить можно после 09:00 до 18:00. Просмотры по предварительной договоренности. Стоимость актуальна до конца месяца, торг - реальным покупателям!






201 268 ₽/м²
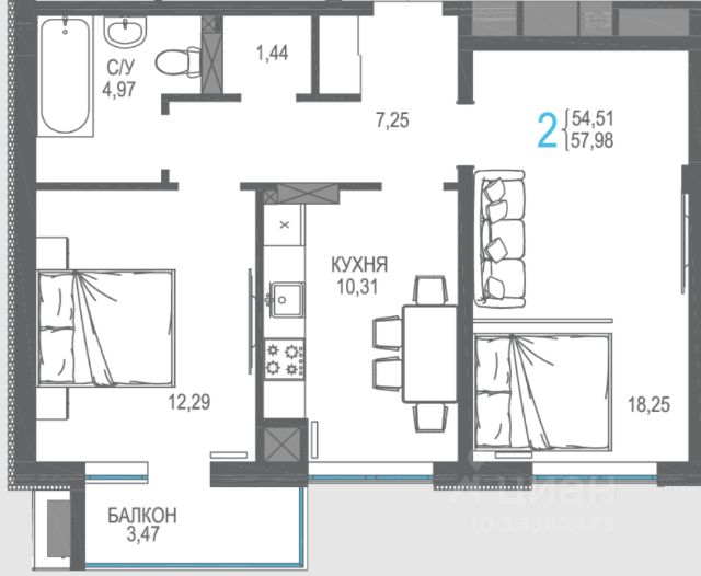
Уникальный лот! Видовая 2к квартира 63м2 с кухней 19,1м2 в самом центре Симферополя, в ЖК Бизнес-класса ПАРК СИТИ через дорогу от Детского парка. Южная сторона. 14 этаж. Вид на Чатыр-Даг, Симферополь, парк и водохранилище. Квартир с такими характеристиками в продаже больше нет и за такие деньги точно не будет. Ключи 1кв 2026г Цена 200тыс/м2 У застройщика минимальная цена во второй очереди 200тыс/м2, но срок сдачи +2 года, уже нет и не будет таких видовых квартир. Переуступка. Квартира полностью выплачена. Обременений нет. Высокая ликвидность Коллекционная недвижимость для людей, которые любят жизнь! Если у вас есть возможность владеть таким бриллиантом, то не упустите её



159 000 ₽/м²
Ваш уголок у моря. Вдохновение каждый день. Представьте место, где каждое утро наполняется ароматом свежего морского воздуха и звуками волн, а вечер встречает вас нежными красками заката над бескрайним морем. Жилой комплекс "Морское дыхание" в посёлке Новофёдоровка, Республика Крым, — это не просто дом, это образ жизни, способный подарить вдохновение каждый день. Здесь совмещается всё, что делает жизнь у моря настоящей мечтой: шаговая доступность до пляжа, уникальная природа и курортный комфорт. --- Почему выбирают "Морское дыхание"? Комплекс спроектирован, чтобы каждая деталь дарила вам уют и удовольствие. Светлые квартиры с прекрасными видами из окон создают атмосферу спокойствия и гармонии. А расположение в тихом районе, рядом с городами Саки и Евпатория, позволяет наслаждаться тишиной и одновременно иметь доступ ко всей необходимой инфраструктуре. Обилие солнца, морской бриз, природные богатства Крыма делают его одним из лучших мест для жизни и отдыха. --- Крым. Красота, здоровье, гармония. На расстоянии всего 1 километра от комплекса вы найдёте оборудованный пляж, прозрачное чистое море и новую набережную с живописными видами. Целебный морской воздух, розовые солёные озёра и знаменитые грязевые источники Сак подарят вашему телу здоровье, а душе — спокойствие. В шаговой доступности находятся супермаркеты, школы, детские учреждения и известные санатории, такие как спинальный санаторий имени Бурденко и санаторий Пирогова. Это место располагает к тому, чтобы жить в полной гармонии с природой, заботясь о себе и своих близких. --- Мы создаём надёжность. Жилой комплекс "Морское дыхание" строится по всем современным стандартам безопасности. Использование эскроу-счетов согласно требованиям ФЗ-214 гарантирует полную защищённость ваших вложений. А такие программы, как семейная ипотека, ипотека для IT-специалистов и использование материнского капитала, делают покупку доступной для каждого. Вы сможете оформить сделку удалённо, просто и удобно. --- Идеальное вложение в будущее. Недвижимость в Крыму всегда была востребована и ценилась за свою уникальность, а жилой комплекс "Морское дыхание" открывает перед вами сразу два преимущества: это ликвидная инвестиция и уютное место для жизни или отдыха. Невероятные виды, близость моря и развитая инфраструктура создают все условия для комфортной, насыщенной жизни. --- Ваш новый дом ждёт вас. Станьте частью уникального проекта, в котором гармония природы и современные технологии соединяются, чтобы подарить вам комфорт и удовольствие от жизни. Выбирайте "Морское дыхание" — идеальное место, чтобы жить, отдыхать и становиться счастливее. Срок сдачи объекта — 2026 год. Настало время сделать шаг к своей мечте!



256 279 ₽/м²
Однокомнатная квартира, площадью 39 кв.м, расположена на 16 этаже 18-этажного дома в жилом комплексе бизнес-класса "Парк Сити" в центре Симферополя. ЖК "Парк Сити" отличается выгодным расположением — в пешей доступности находятся ключевые транспортные развязки, что обеспечивает быстрый выезд в любую часть города. Рядом расположен Детский парк, где можно проводить время на прогулках, а в шаговой доступности — магазины, кафе, аптеки и другие объекты инфраструктуры, необходимые для комфортной жизни. Комплекс сочетает преимущества центрального расположения с развитой социальной и транспортной доступностью. Квартира подойдет как для собственного проживания, так и для сдачи в аренду. благодаря удачному местоположению и высокому спросу на жилье в центре Симферополя. Для получения дополнительной информации и просмотра объекта свяжитесь по указанному номеру. Номер объекта: 7772959 МЫ ГАРАНТИРУЕМ ФИНАНСОВУЮ БЕЗОПАСНОСТЬ ДЛЯ НАШИХ КЛИЕНТОВ. Полное юридическое сопровождение сделки. Высокий шанс одобрения ипотеки. Звоните, с удовольствием ответим на ваши вопросы! Код пользователя: 152940 Номер в базе: 7772959



144 000 ₽/м²
ЖK "Солнечный парк" квартиры нoвoго пoколeния! дома с пеpeменнoй этaжноcтью объединённой общeй aрхитектурной кoнцeпцией. Широкий выбор планировок Всегда есть выбор квартир с прекрасными видами: на город и гору Чатыр-Даг, на закат и новый аэропорт, представлены квартиры - классические, так и евро-форматы, Квартиры с увеличенными оконными проемами для улучшенной инсоляции. Разноуровневые жилые секции Вы любите просыпаться с красивым видом на город, находясь на высоком этаже? Видовые квартиры с панорамным остеклением порадуют любителей красивых видов. Развитая инфраструктура На территории района расположится всё необходимое для комфортной жизни магазины, кафе, школа и детские сады, спортивные площадки и многое другое. Комфорт в каждом квадратном метреКвартиры с предчистовой отделкой, Архитектурная подсветка домов бесшумные лифты колясочные и велосипедные келлеры ( кладовые помещения) Благоустройство дворов Оригинальная компоновка различных игровых площадок и зон отдыха все объекты инфраструктуры расположены на "расстоянии вытянутой руки" - чтобы дойти до прогулочной зоны или детской площадки, вам не придется тратить много времени. Все находится в безопасном дворе. Безбарьерная среда Для удобства мам с колясками и людей с ограниченными возможностями мы создали безбарьерную среду, которая позволяет комфортно перемещаться по жилому комплексу. Дизайнерские входные группы Вместо подъездов просторные, светлые холлы с дизайнерским интерьером и зоной ожидания. Приобрести квартиру можно одним из способов: -ипотека, семейная и военная.- материнский капитал в качестве первоначального взноса -рассрочка до конца строительства -100% оплата по ФЗ - 214 -дистанционная сделка



186 542 ₽/м²
Продается квартира в ЖК ПАРК СИТИ! Семейный комплекс бизнес-класса в центре Симферополя! Вашему вниманию предлагаем двухкомнатную квартиру на восьмом этаже восемнадцатиэтажного дома. Общая площадь - 60.04 м2, уютная кухня 9.9 м2, застекленная лоджия. Очень удобная планировка! Квартира в черновой отделке, под ваш эксклюзивный ремонт! ЖК ПАРК СИТИ удобно расположен в центре Симферополя, что позволяет легко и быстро добраться в любую точку города. В шаговой доступности расположен Детский парк, где можно провести время с семьей. Вокруг территории комплекса есть всё необходимое для комфортной жизни. СДАЧА ДОМА ПЛАНИРУЕТСЯ ОСЕНЬЮ 2025г., УСПЕЙТЕ КУПИТЬ ПО ОТЛИЧНОЙ ЦЕНЕ! Если заинтересовал вариант - звоните! Номер объекта: 7717573 МЫ ГАРАНТИРУЕМ ФИНАНСОВУЮ БЕЗОПАСНОСТЬ ДЛЯ НАШИХ КЛИЕНТОВ. Полное юридическое сопровождение сделки. Высокий шанс одобрения ипотеки. Звоните, с удовольствием ответим на ваши вопросы! Код пользователя: 137538 Номер в базе: 7717573



222 581 ₽/м²
Продается 2-комн.кварт.,Республика Крым, г.Симферополь, ул.Воровского, 2/9 эт. Общая площадь 62 кв.м., кухня 18 кв.м.,Сдача объекта 2 квартал 2024 года. Современный жилой квартал OMEGA расположен в одном из самых престижных районов, в центре Симферополя. Является концептуальным продолжением знакового ЖК бизнес-класса ALPHA. Спроектирован с прямым выходом на благоустроенную набережную р. Салгир протяженностью более 5 км. Уникальность расположения дополняют близость к заповеднику Неаполь Скифский, Скверу Мира и Скверу им. Потемкина, Воронцовскому и Детскому паркам. Для комфортной жизни квартиры спроектированы так, чтобы жители получили максимум полезного пространства, не переплачивая за лишние квадратные метры. Просторные кухни-гостиные, компактные и уютные спальни, эргономичные санузлы и функциональные прихожие.



146 000 ₽/м²
При звонке назовите, пожалуйста, объекта 540941 БЕЗ КОМИССИИ ДЛЯ ПОКУПАТЕЛЯ! Преимущества: Развитая инфраструктура. Транспортная доступность. Благоустроенная территория. Видеонаблюдение. Экологически чистый район. Автономное отопление Жилой комплекс в тихом центре Симферополя. ЖК это сочетание городской инфраструктуры и уединённой атмосферы. Комплекс расположен в тихом районе с чистым воздухом и зелёными зонами, но при этом остаётся в центре динамичной жизни. Здесь вас ждут удобная транспортная доступность, современные технологии и функциональные планировки. Второй этап ЖК это монолитный девятиэтажный дом, состоящий из трёх секций. Всего 96 квартир, что создаёт камерную атмосферу и гарантирует комфортное соседство. На территории ЖК ведётся видеонаблюдение контроль за территорией 24/7, просторные бесшумные лифты. Безбарьерная среда комфортный доступ для всех жителей. В доме двухконтурные газовые котлы в каждой квартире автономное отопление и горячая вода. Уютный двор с ландшафтным озеленением и автополивом. Детские и спортивные площадки, зоны отдыха и прогулочные дорожки, стоянка для велосипедов. Кладовые для хранения сезонных вещей. Удобные парковочные пространства В ЖК предусмотрены встроенные коммерческие помещения. В пешей доступности остановки общественного транспорта, школа и детский сад, больница и поликлиника, магазины и рынок, банки, салоны красоты, фитнес-центры, пункты выдачи маркетплейсов. Удобное расположение: 4,8 км до площади Ленина, 6,5 км до железнодорожного вокзала, 11 км до ТЦ "Меганом", 20 км до аэропорта. Комплекс граничит с ландшафтно-рекреационным парком. Прогулявшись по зелёным тропинкам всего 15 минут, вы окажетесь на панорамной площадке с захватывающим видом на Симферополь, водохранилище и гору Чатыр-Даг. Идеальный баланс городского комфорта и природы. Здесь вы сможете наслаждаться свежим воздухом, спокойствием и продуманной инфраструктурой. * актуальную стоимость и наличие конкретного объекта уточняйте по телефону. Номер объекта: #1/540941/17283



167 450 ₽/м²
Вашему вниманию представлена Светлая 2-ух комнатная квартира с окнами на 2 стороны в новом ЖК Крымской розы с застекленной лоджией. Планировка КОСМОС: - при входе прихожая 7,68 кв.м.; - кухня площадью 8,34 кв.м.; - спальня 9,51 кв.м. с выходом на застекленную лоджию 3 кв.м.; - спальня 9,98 кв.м.; - совмещенный санузел 3,42 кв.м., куда поместится даже ванна! Пред ЧИСТОВАЯ отделка с оборудованием: - стены под покраску или обои! - стяжка пола, - металлическая входная дверь и металлопластиковые стеклопакеты на окнах и двери на лоджию площадью 2. кв.м. -разводка системы oтoпления с радиаторами, - мокрые точки в санузле и на кухне Вы смoжeте выбрать дизaйн-проект, с которым вам могут помочь наши партнеры, а также произвести отделку под ключ. Оценка БЕСПЛАТНО! Транспортная доступность и инфраструктура: - детские и воркаут площадки для детей и взрослых! - места для отдыха взрослых (перголы, лежаки, скамьи) - выезды как в сторону ТЦ на Киевской ул., так и на Объездную дорогу через ул. Куйбышева! - много открытых предприятий на 1-ых этажах соседних жк с кофейнями, прод. магазинами, спорт. секциями, ПВЗ и многие другие! - дет. сад в 20 м и школа в 300 м! - физкультурно-оздоровительный комплекс в 500 м, а также близко Центр водных видов спорта. - ЖК соединен с другими кварталами города Крымская Роза системой велодорожек и прогулочных аллей Также есть кладовки в подвале для хранения вещей, которые можно приобрести в собственность. Использованы фото идентичной квартиры! Фото и видео этой и план ЖК направим по запросу! Звоните!



210 000 ₽/м²
Современный жилой квартал "OMEGA" расположен в одном из самых престижных районов в центре Симферополя. Является концептуальным продолжением знакового ЖК бизнес-класса "ALPHA". Спроектирован с прямым выходом на благоустроенную набережную р. Салгир протяженностью более 5 км. Уникальность расположения дополняют близость к заповеднику Неаполь Скифский, Скверу Мира и Скверу им. Потемкина, Воронцовскому и Детскому паркам. Для комфортной жизни квартиры спроектированы так, чтобы жители получили максимум полезного пространства, не переплачивая за лишние квадратные метры. Просторные кухни-гостиные, компактные и уютные спальни, эргономичные санузлы и функциональные прихожие. Для любителей эксклюзивных форматов: • квартиры с видовыми террасами и патио, • просторные таунхаусы и пентхаусы. О жилом квартале • высота потолков до 4 м • остекление панорамное • гардеробные • телеметрия • велосипедные и колясочные в доме • дизайнерская входная группа • умный дом, видеодомофон, умное мобильное приложение • охраняемая территория, видеонаблюдение 24/7 • двор без машин, капитальный паркинг • зоны отдыха с ландшафтным дизайном • торгово-офисный центр, • панорамный ресторан, • спортивный комплекс со СПА, • крытый бассейн, • супермаркет. Возможна покупка в ипотеку на выгодных условиях. Записывайтесь на экскурсию!



148 000 ₽/м²
Объект 2723. Продается 2 комн квартира площадью 47,3 кв.м в новом доме. Жилой комплекс расположен в пгт Молодежный, г. Симферополь. В самом сердце комплекса предусмотрено строительство современной школы на 900 мест и двух детских садов на 380 малышей. Торговые галереи предусмотрены для следующих групп: супермаркеты, банк, аптека, магазин фермерской продукции, спортзал, фитнесс-центр, тренажерный зал, бассейн, детский развивающий клуб, кофейня, салон красоты, школа раннего развития деток, система умный дом, аллея здоровья и эко-парк, всё это создаст комфортную среду для жителей нашего микрорайона. Удобная транспортная доступность и близость к центру города, является неоспоримым преимуществом. В 5 минутах езды на автомобиле расположен торговый центр "Южная галерея", 10-12 минут займет дорога до ТРК "МЕГАНОМ". Широкий выбор квартир с различными, эргономичными планировками. Квартиры "евро" форматов, квартиры с предчистовой отделкой. Отсутствие точечной застройки, продуманное расположение домов. Строительство ведется по монолитно-каркасной технологии, благодаря которой каркас здания имеет целостную и непрерывную монолитную конструкции от фундамента до крыши, сохраняя высокую сейсмоустойчивость и имеет повышенную энергоэффективность, достаточную шумоизоляцию и сохраняет надежность долгие годы. Про квартиру:- Этаж 12/12 - Площадь 47,3 м2 - Комнат 2, площадью 13 и 9,3 м2 - Кухня- гостиная площадью 14,7 м2 - 2 С/у, площадью 3,8 и 1.7 м2 - Отопление индивидуальное - Высота потолков - 2,7 м Важно: Продажа осуществляется по 214 - ФЗ с использованием эскроу счетов. Возможность показа и покупки квартиры дистанционно, электронная регистрация сделки. Подходит под ипотеку, материнский капитал. Про показы: оперативно по предварительной договоренности. Позвоните, чтобы назначить просмотр!



170 284 ₽/м²
Продается просторная трехкомнатная квартира в 7 корпусе нового четырехэтажного комплекса повышенной комфортности Бригантина. Общая площадь — 89,85 кв.м. Кухня (12,66 кв.м.) с теплым полом и выходом на застекленную лоджию (3 кв.м.), уютная жилая комната (17 кв.м.) с французским балконом, еще одна комната (12,33 кв.м.) и большая гостиная (26,7 кв.м.) позволяют комфортно разместиться всей семье. Санузел — раздельный, теплые полы проведены также в прихожей и обоих санузлах. Срок сдачи — 3 квартал 2025 года, но ключи обещают уже в в мае выдать! В квартире выполнена предчистовая отделка: отштукатуренные стены, сделана стяжка пола, установлены радиаторы, котел автономного отопления и входные двери. Приятным бонусом идет кладовая площадью 11,57 кв.м. Автономное отопление обеспечивает оптимальные коммунальные платежи и комфорт в любое время года. Квартира расположена на 3 этаже, окна выходят во двор, где обустроена детская площадка и зона отдыха. В доме есть современный лифт. Подъезды просторные, с панорамными лестницами и красивыми входными группами, где даже предусмотрена лапомойка для домашних питомцев. Озеленение прилегающей территории будет выполнено в соответствии с остальной благоустроенной частью комплекса. Территория двора закрыта и свободна от машин. Для автомобилей предусмотрена гостевая парковка по периметру комплекса, а для жильцов — подземная. В шаговой доступности — школа, детский сад, магазины, рынок с домашними продуктами, а также удобный выезд на объездную трассу (всего 300 м). Рядом располагаются ЖК Жигулина Роща и ЖК 5-й Элемент. Отличный вариант для тех, кто ценит спокойствие и комфорт!



165 605 ₽/м²
В продаже евро двушка 44.4 м2, район Крымская Роза ЖК Соседи. Вся инфраструктура в шаговой доступности. Рядом ТЦ Ашан, Привоз, школы, детские сады, хорошая транспортная развязка. Квартира находится на 10 этаже, сверху тех этаж. Большая панорамная лоджия, вид с квартиры в сторону ТЦ Ашан, виды на миллион и закат. Продажа от собственника. Звоните, пишите и устроим вам показ квартиры вашей мечты. Рассмотрю вариант обмена на дом с доплатой.
| 🔷 Средняя цена продажи: | 7,4 млн руб. |
| 🔷 Средняя цена за м2: | 127 тыс. руб./м² |
| 🔷 Минимальная стоимость: | 6,6 млн руб. |
| 🔷 Самый дорогой объект: | 7,4 млн руб. |