


370 000 ₽/м²
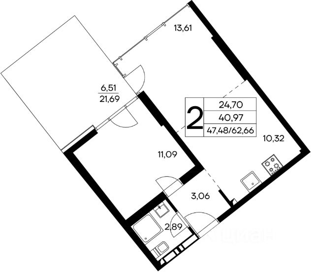
Продаётся 2-комнатная квартира в строящемся доме (БС-3), срок сдачи: III-кв. 2027, общей площадью 44.11 кв.м., на 5 этаже. Наш комплекс - это рай для детей. Мы предусмотрели активности для детей разных возрастов. Курорт "Лучистое" - это место, где максимально комфортно и не принуждённо будет развиваться творческая личность Вашего малыша! Пока дети развлекаются, взрослые могут спокойно насладиться атмосферой. К Вашим услугам аква- зоны и банный комплекс. Ресторанный сектор обслужит Вас в любом удобном для Вас месте: у бассейна, дома, во дворе в тени крымских сосен или на смотровой площадке. Оборудованные беседки- барбекю располагают к душевному вечернему времяпровождению с крымским авторским вином. Все элементы нашего комплекса способствуют оздоровлению Вас и Вашей семьи. Просто гуляя по хвойному парку, вы погружаетесь в климатолечение. Совершая пробежки по горным терренкурам, не принуждённо привыкаете к увеличению физических нагрузок. А если дождливая погода, позаниматься фитнесом можно в спортзале. Ну а наш йога-центр с видом на крымские горы - это "изюминка" нашего комплекса.












































































































































