115 900 ₽/м²
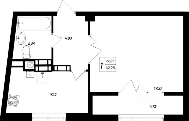
Продается уютная однокомнатная квартира в ЖК Республика. Без комиссии для покупателя!!! Жилой комплекс это 22 дома средней этажности со всей необходимой инфраструктурой. Крупный микрорайон расположится в Гвардейском. Собственники будут жить в спокойном, уютном, экологически чистом районе в активном ритме крымской столицы. В рамках первой очереди проекта будет возведено три восьмиэтажных дома. За простыми архитектурными формами и яркими фасадами скрыта надёжная монолитная конструкция. В ЖК тщательно продумана планировка каждой квартиры: популярные студии эргономичные однокомнатные функциональные двухкомнатные Удобная транспортная развязка даёт возможность быстро выехать на федеральную трассу Таврида. Отсюда можно с лёгкостью добраться в любой район Симферополя, а также до аэропорта и железнодорожного вокзала. В непосредственной близости новая Республиканская современная больница имени Семашко. Рядом все важные социальные объекты, остановки и развитый жилой район. На прилегающем участке строится новый детский сад на 240 мест. В домах расположатся встроенные коммерческие помещения для размещения кофеен, продуктовых магазинов, аптек и других объектов торговли и услуг. В ЖК предусмотрены: уютные благоустроенные дворы, ландшафтное озеленение, современные детские площадки, спортивные площадки, места отдыха, удобные парковочные пространства, бесшумные и вместительные лифты. В квартирах индивидуальное газовое отопление. В продаже квартиры с предчистовой отделкой White Box вам остается только внести финальные штрихи по своему вкусу. Преимущества:Развитая инфраструктура.Транспортная доступность.Большой выбор планировочных решений.Детский сад на 240 мест.Индивидуальное газовое отоплениеЧтобы уточнить актуальность объекта и наличие других - звоните! Объекта 542185 Номер объекта: #1/542185/17283














































































