


488 168 ₽/м²
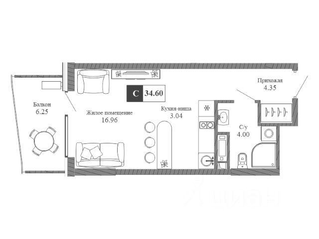
Продаются 1-комнатные апартаменты в сданном доме (Корпус 5 "Айвазовский"), срок сдачи: IV-кв. 2025, общей площадью 27.37 кв.м., на 7 этаже. Апартаменты с отделкой white box, панорамным остеклением. В 500 метрах от моря! Главное преимущество комплекса — большие открытые террасы с видом на море, горы и город. Апарт-комплекс бизнес-класса "Крымская Резиденция" эксклюзивный проект, в максимальной степени воплощающий представления о комфортном отдыхе. Проектом предусмотрено строительство 9 корпусов со всеми необходимыми объектами инфраструктуры, возводимыми в три очереди строительства. Здания оригинальной треугольной формы обеспечивают равномерное наполнение каждых апартаментов солнечным светом. Точно выверенный угол поворота корпусов позволяет любоваться завораживающими панорамами Крыма. Благоустроенная территория: - Ограждение и круглосуточная охрана - Ландшафтный дизайн - Бассейн, детские и спортивные площадки, зоны отдыха Прекрасная инфраструктура: Расположение в сердце Южного берега Крыма открывает доступ к достопримечательностям: горам Демерджи, Чатыр-Даг и Кастель, водопаду Джур-Джур, Крымскому заповеднику и др. Неподалеку аквапарк, дельфинарий, аквариум и другие развлечения. Внутренняя инфраструктура включает фитнес и SPA с бассейном, рестораны и кафе, центр детского развития. Круглосуточный консьерж-сервис. Отличная транспортная доступность: - Всего 1 час езды от аэропорта в Симферополе. Новый терминал аэропорта с видовой террасой, ландшафтным парком, ресторанами и магазинами. - Современные дороги, курорт первый на пути, с открытием Крымского моста добираться в Алушту на авто стало проще - Рядом с комплексом пролегает Ялтинское шоссе - До автовокзала Алушты 3 минуты на авто или 15 минут пешком. Успейте приобрести шикарные апартаменты у моря на старте продаж, по самым выгодным ценам! Все подробности по телефону, звоните! * Стоимость действительна при 100% Оплате или Ипотеке.



































































































































