


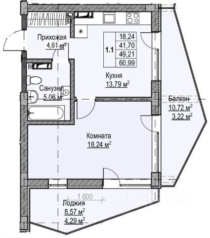
307 344 ₽/м²
ЗВОНИТЕ ПРЯМО СЕЙЧАС, ЧТОБЫ ЗАБРОНИРОВАТЬ ЛУЧШУЮ КВАРТИРУ! - 80% ВИДОВЫХ КВАРТИРА НА МОРЕ ИЛИ ГОРЫ - Рассрочка 0% - Ипотека от СБЕРБАНКА - Доходность инвестиций от 40% годовых. - Безопасная сделка по ФЗ-214/эскроу-счёта Клубный дом "Ялта" — это воплощение изысканной жизни, где гармонично сочетаются статусность бизнес-класса, уют курортного отдыха и передовые технологии для комфортного проживания. Этот жилой комплекс создан для тех, кто ценит безупречное качество, безопасность и эстетику в каждой детали. Архитектура и дизайн * Современное монолитное 16-этажное здание * Фасады благородных оттенков: чистый белый, переливы шампань и тёплое золото * Первые этажи комплекса представлены в отделке рустовым камнем * Авторские интерьеры мест общего пользования * В темное время суток здания подчёркивает подсветка Характеристики квартиры и мест общего пользования * 80% лотов — с панорамными видами на море и горы. * Просторные балконы * Вместительные гардеробные и кухни-гостиные * Высокие потолки квартир 2,8 м Инфраструктура для комфортной жизни * Инфинити-бассейн * Ландшафтный дизайн и озеленение придомовой территории комплекса * Скоростные грузопассажирские лифты, соответствующие стандартам 5*-отелей, с прямым доступом в паркинг. * Кафетерий и магазин у дома * Детский веревочный комплекс "Парк-Маугли" * Скалодром * Финская сауна, хамам * На 1 этаже жилого комплекса - лапомойка и гостевой туалет Безопасность и технологии спокойствия * Закрытая территория, контролируемый доступ * Видеонаблюдение по всему периметру комплекса * Электронные домофоны с индивидуальными ключами с доступом * Безбарьерная среда * Подземный паркинг * Келлеры * Зоны хранения для велосипедов, самокатов и колясок * Мотоместа Коммуникации и инженерия * Автономная газовая котельная на крыше * Телеметрия * Класс энергоэффективности жилого комплекса "А+" * Места для кондиционеров и практическое решение для маскировки коммуникаций Расположение и ближайшие пляжи * 2,9 км до моря 10 мин на машине * 2 км от центра Ялты * Пляж Приморский — 30 мин пешком / 10 мин на авто * Пляж Массандровский — 20 мин на машине




























































































































